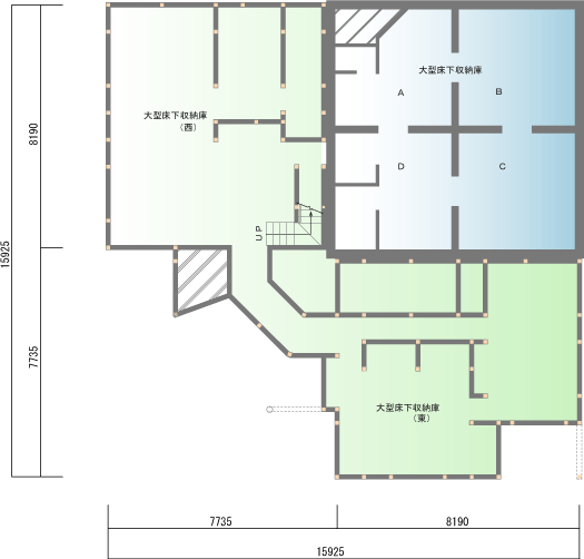
H邸 43畳大型床下収納庫
地下室データ H邸
■住所 茨城県土浦市
■地下用途 大型床下収納庫
■広さ 計43畳
■地下工事費 計:1043万円 坪単価:49.03万円 □内訳 地下工事費:886万円 共通仮設費と経費:152万円
■コメント 大型床下収納庫(ABCD)の上にはRCの写真スタジオとなっています。
地上部分・全体 | 地下